Emily Davey

SPATIAL NARRATIVES

University of Westminster

Cli-Lab Project – London Canal Museum

PROJECT NAME

Spatial Narratives: Cli-Lab


DATE

Sept 2022 – Jan 2023

The aim of this project was to create a hybrid proposal of two uses for the refurbished London of Canal Museum. I explored a problem within London- being water pollution and algae and I considered ways of promoting sustainable change.

INSPIRATION: ESMERALDA – CITY OF WATER

TRADING CITIES 5 by ITALO CALVINO

CONCEPT MODEL

I created a concept model after taking inspiration from the opening of Esmeralda because of its metaphorical description of its setting. The passage is widely created to be open to interpretation and this model is what I saw.


My model is a section of a water way found in Esmeralda. The main body of the model, was created by carving into black foam. I carved out the tunnels using a craft knife. The water was created using resin and dye along with model vegetation and gravel for aesthetic.

INSPIRATION: ESMERALDA

ISOMETRIC ANIMATION

An isometric digital illustration showing my interpretation of ‘Esmerelda’ at just above street view, with emphasis on the dark streets and the levels mentioned in the extract. I used a stylus and an iPad software ‘Mental Canvas’ to produce this image as well as creating a zoom-in-zoom-out animation.


LONDON CANAL SECTIONAL MODEL – LAYERS

Created using resin, the model is a representation of the canal water systems in London. There is no scale to this model.


I used green modelling vegetation to represent the algae that is found on the surface of the water. The representation of litter was created using scrunched up paper, which emphasises the pollution and contamination within the water. The vegetation layer was created using sticks along the surface of the canal bed to represent the metal and wastage that sinks. I created a deep mud layer using sand, dirt and gravel.


Regent’s Canal Algae.

Regent’s Canal Algae.

River Thames Water Sampling.

River Thames Water Sampling.

WATER SAMPLING

I collected different samples of water to show the difference between qualities.


The test tube on the left is the Regent's Canal water located next to the site of London Canal Museum. The sample contains clearer water and algae presence. The sample of the surprising the initial view, the only thing that was in the water sample, was the algae.


The test tube in the middle was collected from the River Thames main body by Tower Bridge. The sample contains merky water which is contaminated by sediment particles, as well as sewage. It is harmful and likely to have boat emission oils and fuel in.


The test tube on the right is a tap water sample.



VIDEO PRESENTATION

Water Quality


https://universityofwestminster-my.sharepoint.com/personal/w1775314_westminster_ac_uk/_layouts/15/onedrive.aspx-

?id=%2Fpersonal%2Fw1775314%5Fwestminster%5Fac%5Fuk%2FDocuments%2FSD5%2D%20Spatial%20Narratives



THE SITE

London Canal Museum, 12-13 New Wharf Road, London, N1 9RT

Air Pollution Map.

Water Pollution.

SITE ANALYSIS

As I was looking into pollution and algae for my project, I started to map out several aspects that impacted the site.


The first map shows air pollution surrounding London’s waterways.

The middle map shows the quantity of London green spaces.

The final map shows the system of waterways and areas affected by sewage and water pollution.

Site Collage.

Site Analysis.

Sun Path Analysis.

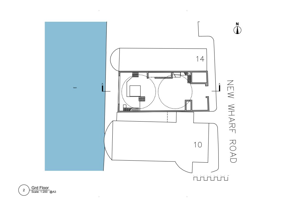
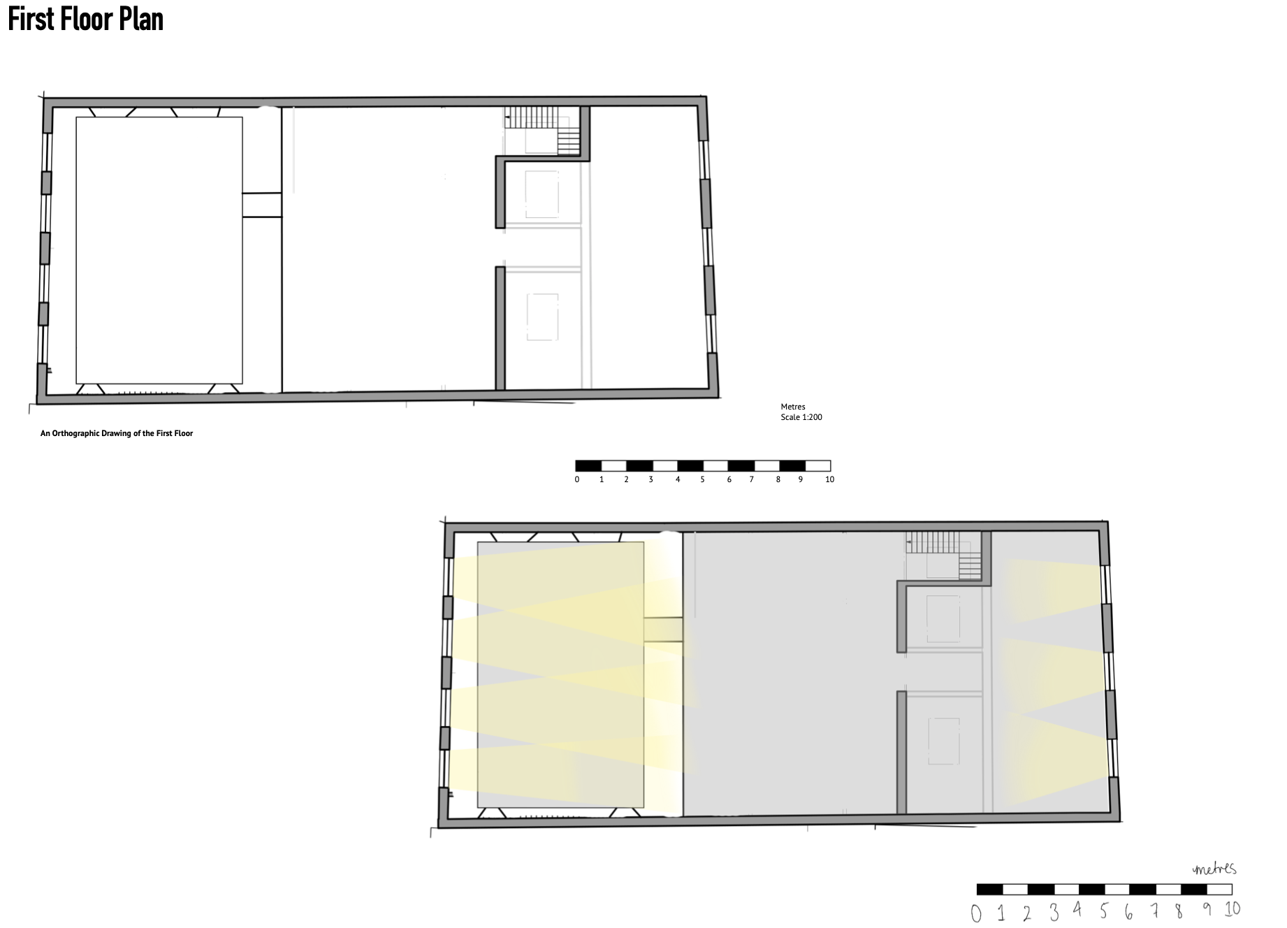
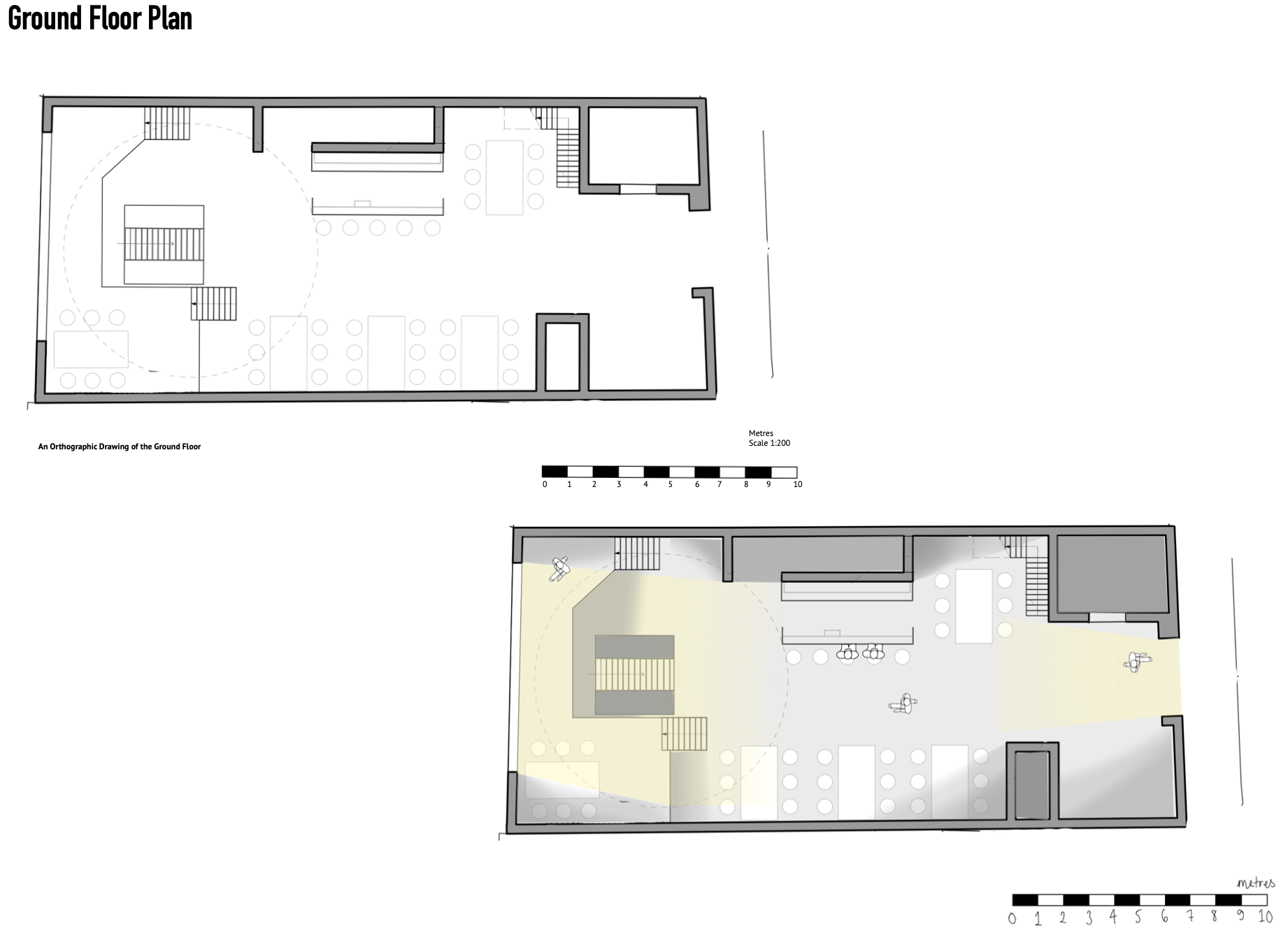
EXISTING SITE PLANS

Below are the existing floor plans of the site, showing the ground floor, first floor, and roof plan. Created using AutoCAD.

Existing Roof Plan.

Existing First Floor Plan.

Existing Ground Floor Plan and Location of Ice Wells.

Existing Section.

Image of Stairs.

Image of Ramp.

Image of Roof Trussing.

Image of Ice Well Opening.

Image of Regent’s Canal.

CONCEPT

After growing algae myself after collecting it from Regent’s Canal, I began thinking about the purpose of my proposal. I enjoyed the process of growing the algae.


After research, algae can be grown and consumed as it is considered a superfood. It can be grown, harvested, and processed for consumption, which could be easily transported around London, using the Canal network.


I began to look into this idea, and it is more effective to grow algae in a smaller space because the water beneath is classed as wasted space.

HYBRID PURPOSE

As a multi-purpose use proposal, I began to think of ways of promoting and growing awareness of algae as a superfood. I wanted to create a social space that people could be mesmerised with the colours and processes of the algae.


I thought a club and bar environment would be an effective use of the underground, ice well space, integrating in the spirals of algae growth.


Club environments use light and I thought this would be an effective way of promoting the superfood.

Parti Diagram.

THE FINAL PROPOSAL

abc

Final Section.

Final Ground Floor Plan.

Final First Floor Plan.

VISUAL USING SITE MODEL

An Visual Image of the First Floor of the Well Night Club looking up at the Ground Floor.


Created using images of model and photoshop in order to create the atmosphere of a nightclub and and an algae farm.